高知市の不動産情報|ライブ > 高知市高須3丁目










(※元利均等方式 金利5.00%まで ※返済年数5~50年まで入力できます)
(※ボーナスは年2回で計算しています。1000万円まで入力できます)
(※物件購入時、その他諸費用が発生する場合がございます)
| 所在地 | 高知県高知市高須3丁目 | ||
|---|---|---|---|
| 交通 | |||
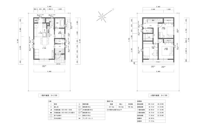
| 間取り/詳細 |
3LDK/ 1階:LDK12.9 2階:洋5.2、洋5、洋4.5 |
建物面積(坪数) | 77.84㎡(23.54坪) |
| 価格 | 2,950万円 | ||
| 駐車場/月額料金 | 有/- | ||
| 土地の敷金/保証金 | -/- | 借地料/借地期間 | -/- |
| 土地権利 | 所有権 | 土地面積(坪数) | 100.14㎡(30.29坪) |
| 傾斜地部分面積 | - | 路地状敷地 | - |
| 私道負担面積/セットバック | -/- | 高圧線下面積 | - |
| 地目/地勢 | 宅地/平坦 | 接道状況 | 一方(南東 公道 5.5m) |
| 建ぺい率/容積率 | 60%/200% | 用途地域 | 第一種中高層住居専用 |
| 都市計画 | 市街化区域 | 種別/構造 | 新築一戸建/木造 |
| 階建 | 2階建 | 築年月(築年数) | 2025年 7月 (新築) |
| 総区画数/販売区画数 | -/- | 向き | - |
| 現況 | 完成済み | その他の法令上の制限 | 建築基準法第22条区域 |
| 取引態様/引渡時期 | 仲介/相談 | 建築確認番号 | 第R06確認建築高知建技00864号 |
| 物件番号 | 91875824 | 取引条件の有効期限 | 2025年12月01日 |
| 設備条件 |
|
||
| 備考 |
■ZEH住宅水準の断熱性能(Ua値0.6以下) ■省令準耐火対応 ■JAS規格集成材 ■建物保証20年 (住宅瑕疵保険10年+延長保証10年) ■地盤保証20年 ■住宅設備延長保証10年 ■メンテナンス保証サービス2年 ■住宅トラブル応急対応サポート5年 ■オール電化住宅仕様 (建物本体標準仕様) ■アルミ樹脂複合サッシLOW-Eペアガラス(アルゴンガス入り) ■食器洗浄乾燥機 ■IHクッキングヒーター ■浴室暖房乾燥機 ■玄関収納 ■シャワートイレ (標準附帯工事) ■照明器具一式(全室LED) ■カップボード ■カーテンレール工事 ■境界ブロック・フェンス工事 ■車庫土間コンクリート打ち、砕石入れ ■TVアンテナ工事(地デジのみ) ■エコキュート370ℓ普通型フルオート ※建物価格には建物本体標準仕様工事と標準附帯工事が含まれています。 ※上記に含まれていない工事や標準仕様を超える仕様、設備等を望まれる場合は別途御見積りとなります。 ※境界ブロック、フェンス工事については、新設しない場合がございます。 |
||
| 設備(その他) | 下水道、側溝 | ||
| 取扱会社 |
|
||
| QRコード |
このQRコードを読み取ることで、スマホでも物件情報を確認できます。 |
||
※地図上に表示される物件の位置は付近住所に所在することを表すものであり、実際の物件所在地とは異なる場合がございます。
高知市高須3丁目に関するこだわり条件から探す
高知市の町名から探す
高知市にある駅から探す