高知市の不動産情報|ライブ > 高知市薊野西町1丁目










(※元利均等方式 金利5.00%まで ※返済年数5~50年まで入力できます)
(※ボーナスは年2回で計算しています。1000万円まで入力できます)
(※物件購入時、その他諸費用が発生する場合がございます)
| 所在地 | 高知県高知市薊野西町1丁目 | ||
|---|---|---|---|
| 交通 |
|
||
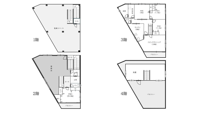
| 間取り/詳細 |
4LDK/ 1階:駐車場 2階:事務所/洋10帖/トイレ 3階:リビング18帖/キッチン8帖/和8帖/洋7.5帖/洋7帖/浴室/洗面/トイレ 4階:物置/バルコニー |
建物面積(坪数) | 247.84㎡(74.97坪) |
| 価格 | 6,500万円 | ||
| 駐車場/月額料金 | 有/ 5~6台 | ||
| 土地の敷金/保証金 | -/- | 借地料/借地期間 | -/- |
| 土地権利 | 所有権 | 土地面積(坪数) | 258.23㎡(78.11坪) |
| 傾斜地部分面積 | - | 路地状敷地 | - |
| 私道負担面積/セットバック | -/- | 高圧線下面積 | - |
| 地目/地勢 | 宅地/- | 接道状況 | 二方(北 公道 25.0m 間口 12.0m)(西 公道 4.0m 間口 4.0m) |
| 建ぺい率/容積率 | 60%/200% | 用途地域 | 近隣商業 |
| 都市計画 | 市街化区域 | 種別/構造 | 中古一戸建/鉄骨造 |
| 階建 | 4階建 | 築年月(築年数) | 1997年 2月 (築29年) |
| 総区画数/販売区画数 | -/- | 向き | - |
| 現況 | 空家 | その他の法令上の制限 | - |
| 取引態様/引渡時期 | 仲介/相談 | 建築確認番号 | - |
| 物件番号 | 101528593 | 取引条件の有効期限 | 2026年03月18日 |
| 設備条件 |
|
||
| 備考 | ■事務所としても使用可能です。 | ||
| 設備(その他) | 上水道、下水道、側溝 | ||
| 取扱会社 |
|
||
| QRコード |
このQRコードを読み取ることで、スマホでも物件情報を確認できます。 |
||
※地図上に表示される物件の位置は付近住所に所在することを表すものであり、実際の物件所在地とは異なる場合がございます。
高知市薊野西町1丁目に関するこだわり条件から探す
高知市の町名から探す
高知市にある駅から探す