高知市の不動産情報|ライブ > 高知市介良/2区画










(※元利均等方式 金利5.00%まで ※返済年数5~50年まで入力できます)
(※ボーナスは年2回で計算しています。1000万円まで入力できます)
(※物件購入時、その他諸費用が発生する場合がございます)
| 所在地 | 高知県高知市介良 | ||
|---|---|---|---|
| 交通 |
|
||
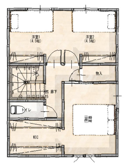
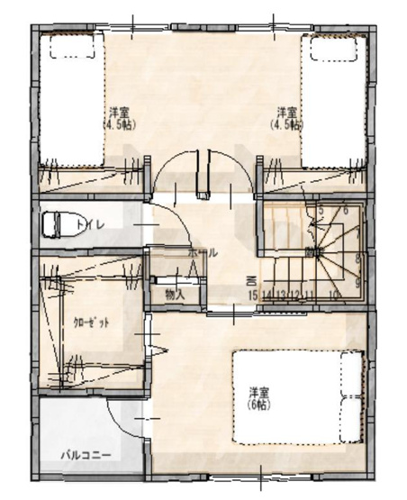
| 間取り/詳細 | 3LDK/ | 建物面積(坪数) | 84.45㎡(25.54坪) |
| 価格 | 3,040万円 | ||
| 駐車場/月額料金 | 有/- | ||
| 土地の敷金/保証金 | -/- | 借地料/借地期間 | -/- |
| 土地権利 | 所有権 | 土地面積(坪数) | 103.76㎡(31.38坪) |
| 傾斜地部分面積 | - | 路地状敷地 | - |
| 私道負担面積/セットバック | -/無 | 高圧線下面積 | - |
| 地目/地勢 | 宅地/- | 接道状況 | 一方(南 公道 5.8m 間口 7.0m) |
| 建ぺい率/容積率 | 60%/100% | 用途地域 | 第一種低層住居専用 |
| 都市計画 | 市街化区域 | 種別/構造 | 新築一戸建/木造 |
| 階建 | 2階建 | 築年月(築年数) | 2026年 3月 (予定) |
| 総区画数/販売区画数 | -/- | 向き | - |
| 現況 | 未着工 | その他の法令上の制限 | - |
| 取引態様/引渡時期 | 仲介/2026年3月下旬 | 建築確認番号 | 第R07-00535号 |
| 物件番号 | 98700257 | 取引条件の有効期限 | 2025年12月01日 |
| 設備条件 |
|
||
| 備考 |
■上記内容は、西区画のものです。 東区画:3085万円 実測 103.12㎡ (約31.19坪) ■耐震等級3取得 ■省令準耐火構造 ■BELS/省エネ基準適合認定 ■別途費用:エアコン・照明・外構 |
||
| 設備(その他) | 上水道、下水道、側溝 | ||
| 取扱会社 |
|
||
| QRコード |
このQRコードを読み取ることで、スマホでも物件情報を確認できます。 |
||
※地図上に表示される物件の位置は付近住所に所在することを表すものであり、実際の物件所在地とは異なる場合がございます。
高知市介良/2区画に関するこだわり条件から探す
高知市の町名から探す
高知市にある駅から探す