高知市の不動産情報|ライブ > 高知市百石町4丁目/2区画










(※元利均等方式 金利5.00%まで ※返済年数5~50年まで入力できます)
(※ボーナスは年2回で計算しています。1000万円まで入力できます)
(※物件購入時、その他諸費用が発生する場合がございます)
| 所在地 | 高知県高知市百石町4丁目 | ||
|---|---|---|---|
| 交通 |
|
||
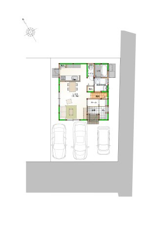
| 間取り/詳細 |
3LDK/ 1階:LDK16.7帖 2階:洋5.1帖、洋5.1帖、寝室6.0帖 |
建物面積(坪数) | 91.64㎡(27.72坪) |
| 価格 | 2,298万円 | ||
| 駐車場/月額料金 | 有/- | ||
| 土地の敷金/保証金 | -/- | 借地料/借地期間 | -/- |
| 土地権利 | 所有権 | 土地面積(坪数) | 120.11㎡(36.33坪) |
| 傾斜地部分面積 | - | 路地状敷地 | - |
| 私道負担面積/セットバック | -/- | 高圧線下面積 | - |
| 地目/地勢 | 宅地/- | 接道状況 | 一方(南西 私道 4.0m 間口 8.9m) |
| 建ぺい率/容積率 | 60%/160% | 用途地域 | 第一種住居 |
| 都市計画 | 市街化区域 | 種別/構造 | 新築一戸建/木造 |
| 階建 | 2階建 | 築年月(築年数) | 2025年 10月 (予定) |
| 総区画数/販売区画数 | -/- | 向き | - |
| 現況 | 未完成 | その他の法令上の制限 | - |
| 取引態様/引渡時期 | 仲介/2025年11月 | 建築確認番号 | 第R07確認建築高知建技0006号 |
| 物件番号 | 95012620 | 取引条件の有効期限 | 2025年12月01日 |
| 設備条件 |
|
||
| 備考 |
■上記内容は、西区画のものです。 東区画:2098万円 119.41㎡(36.12坪) ■耐震等級3相当・一次エネルギー消費等級6・断熱等性能等級5・ZEH仕様・オール電化仕様・Low-eガラス窓 ■長期住宅保証・長期白蟻保証・アフターメンテナンス ■太陽光発電システム7.92kW込みでの販売も可能です。太陽光発電込みでの価格は+100万円になります。 |
||
| 取扱会社 |
|
||
| QRコード |
このQRコードを読み取ることで、スマホでも物件情報を確認できます。 |
||
※地図上に表示される物件の位置は付近住所に所在することを表すものであり、実際の物件所在地とは異なる場合がございます。
高知市百石町4丁目/2区画に関するこだわり条件から探す
高知市の町名から探す
高知市にある駅から探す