高知市の不動産情報|ライブ > 【商談中】南国市篠原










(※元利均等方式 金利5.00%まで ※返済年数5~50年まで入力できます)
(※ボーナスは年2回で計算しています。1000万円まで入力できます)
(※物件購入時、その他諸費用が発生する場合がございます)
| 所在地 | 高知県南国市篠原 | ||
|---|---|---|---|
| 交通 |
|
||
| 坪数/面積/土地面積 | 110.62坪 / 365.71㎡ / 769.10㎡ | バルコニー面積 | - |
| 価格/坪単価 | 5,500万円 / 49.72万円 | 管理費 | - |
| 修繕積立金 | - | 駐車場/月額料金 | 有 / 10台以上駐車可能。 |
| 土地権利 | 所有権 | 国土法届出要否 | 不要 |
| 用途地域 | 準工業 | 地目/地勢 | 雑種地 / 平坦 |
| 種別/構造 | 店舗 / 鉄骨造 | 向き | - |
| 築年月(築年数) | 1994年 11月 (築31年) | ||
| 所在階/階建 | - / - | 棟総戸数/販売戸数 | - / - |
| 管理組合有無 | - | 管理形態 | - |
| 管理員の勤務形態 | - | 管理会社 | - |
| 取引態様 | 仲介 | 現況/引渡し | 空家/即時 |
| 物件番号 | 93685269 | 取引条件の有効期限 | 2026年03月18日 |
| 設備条件 |
|
||
| 備考 |
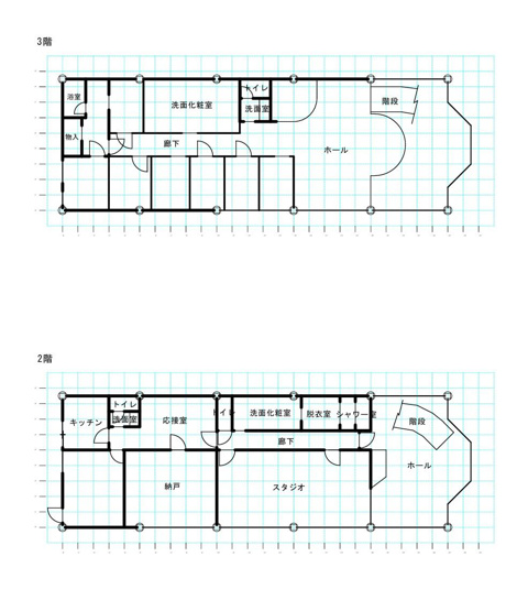
■美容業店舗の居抜き ■津波、土砂災害警戒区域外 ■解体更地渡し相談可能 |
||
| 取扱会社 |
|
||
| QRコード |
このQRコードを読み取ることで、スマホでも物件情報を確認できます。 |
||
※地図上に表示される物件の位置は付近住所に所在することを表すものであり、実際の物件所在地とは異なる場合がございます。
【商談中】南国市篠原に関するこだわり条件から探す
南国市の町名から探す