高知市の不動産情報|ライブ > 香南市野市町父養寺/B号地(未入居物件)










(※元利均等方式 金利5.00%まで ※返済年数5~50年まで入力できます)
(※ボーナスは年2回で計算しています。1000万円まで入力できます)
(※物件購入時、その他諸費用が発生する場合がございます)
| 所在地 | 高知県香南市野市町父養寺 | ||
|---|---|---|---|
| 交通 |
|
||
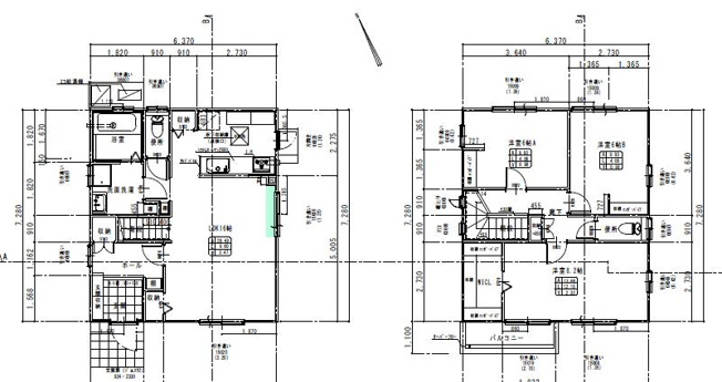
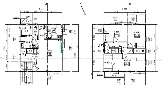
| 間取り/詳細 |
3LDK/ 1階 16LDK 2階 8.2洋・6洋・6洋 |
建物面積(坪数) | 92.74㎡(28.05坪) |
| 価格 | 2,580万円 | ||
| 駐車場/月額料金 | 有/- | ||
| 土地の敷金/保証金 | -/- | 借地料/借地期間 | -/- |
| 土地権利 | 所有権 | 土地面積(坪数) | 122.51㎡(37.05坪) |
| 傾斜地部分面積 | - | 路地状敷地 | - |
| 私道負担面積/セットバック | -/- | 高圧線下面積 | - |
| 地目/地勢 | 宅地/- | 接道状況 | -(南) |
| 建ぺい率/容積率 | 60%/200% | 用途地域 | 無指定 |
| 都市計画 | 非線引区域 | 種別/構造 | 新築一戸建/木造 |
| 階建 | 2階建 | 築年月(築年数) | 2024年 2月 (新築) |
| 総区画数/販売区画数 | -/- | 向き | - |
| 現況 | 完成済み | その他の法令上の制限 | - |
| 取引態様/引渡時期 | 仲介/即時 | 建築確認番号 | 第R05確認建築高知建技00429号 |
| 物件番号 | 79883057 | 取引条件の有効期限 | 2026年04月25日 |
| 設備条件 |
|
||
| 備考 |
【土地+建物:2,930万円(税込)】 ★住宅瑕疵保証10年 ★地盤保証10年 ★省令準耐火仕様(火災保険がお得です) ★玄関収納 ★カーテンレール工事(レースカーテン付) ★TVアンテナ ★照明すべて(各お部屋含む) ★車庫土間コンクリート工事 ★エコキュート460L設置・工事 ★全室エアコン付き |
||
| 取扱会社 |
|
||
| QRコード |
このQRコードを読み取ることで、スマホでも物件情報を確認できます。 |
||
※地図上に表示される物件の位置は付近住所に所在することを表すものであり、実際の物件所在地とは異なる場合がございます。
香南市野市町父養寺/B号地(未入居物件)に関するこだわり条件から探す
香南市にある駅から探す